INTERIOR|KAALIXTO
PROJECT DETAILS
Location: 成都保利时光里北里1F-1021
Chief Designer & Team: Mojo Wang I 濮昊 I 陈铭源
CAD Designer: 王欢
Photography: 形在建筑空间摄影-贺川
Area: 240㎡
Year: 2024


PROJECT OVERVIEW
KAALIXTO保利店延续了工厂与实验室的概念,
设计团队在项目中对结构、节点与空间关系系进行了一定的实验与探索。
-
The KAALIXTO store continues the concept of factory and laboratory.
The design team conducted certain experiments and explorations on the structure, nodes and spatial relationships in the project.




INTERIOR CONCEPT
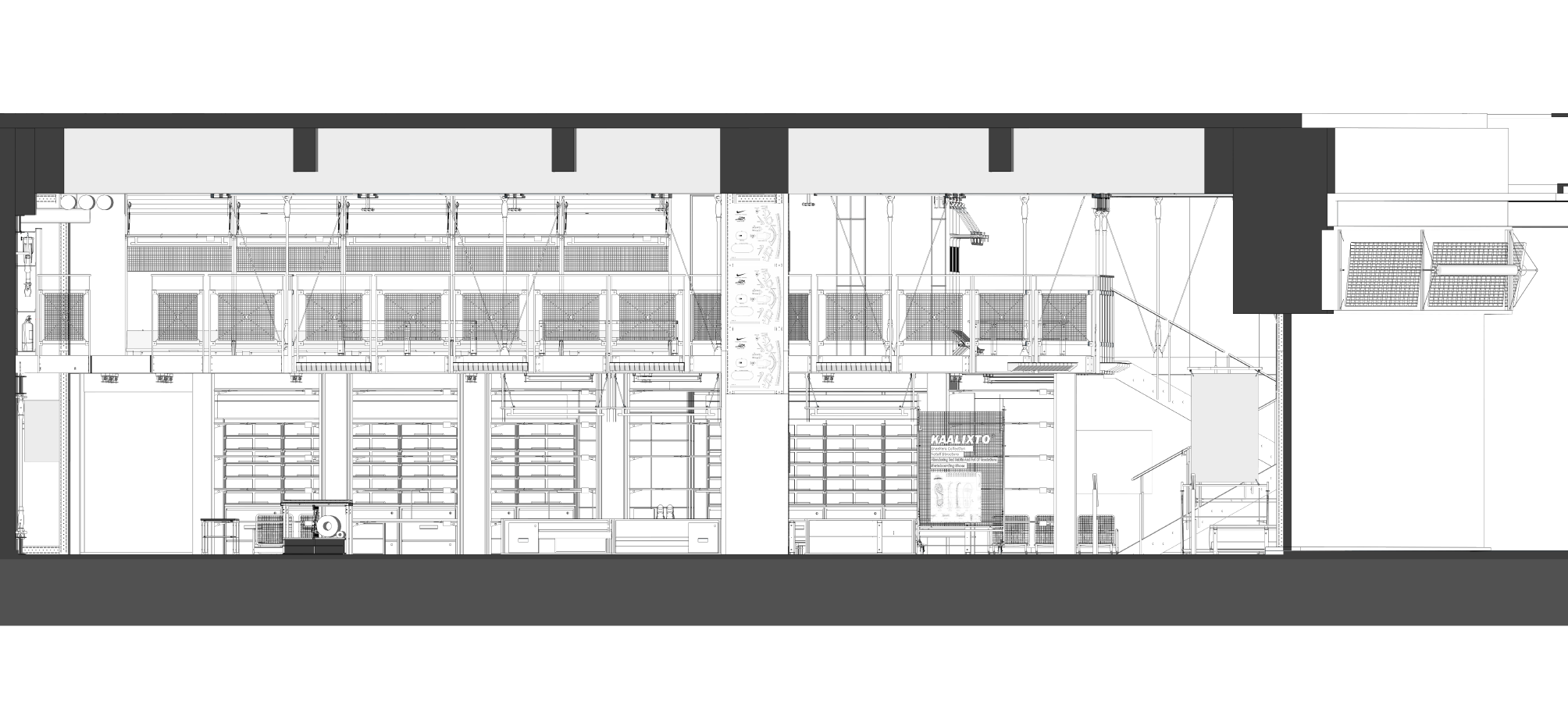
KAALIXTO保利店采用钢结构设计将空间划分为上下两层,并通过两座钢板悬挑楼梯相连接。
空间中整个搭建结构与原建筑混凝土结构均裸露出来,利用暴露的建筑肌理强化空间的结构特征。
-
The store adopts a steel structure design to divide the space into two floors, which are connected by two steel plate cantilevered stairs.
The entire construction structure and the original building's concrete structure are exposed in the space, emphasizing the structural features of the space through the exposed building texture.






空间中存在多种不同的高度层次;
不同标高的销售区功能区形成富有节奏的阶梯式分布,
配合钢结构梁架的叠合走势,在纵向空间内形成具有引导性的视觉动线。
-
The lower floor's sunken space is arranged in a progressive layout through functional zoning: the entrance transition area is paved with white floor tiles to form a visual buffer zone,
while the inward-extending DIY area is equipped with industrial laboratory tables and combined with large-scale square light films to simulate the space form of a factory research and development laboratory.





一楼下沉空间通过功能分区形成递进式布局:
入口过渡区铺设白色地砖构成视觉缓冲带,向内延伸的DIY区则采用工业化实验台配置,
结合大面积方格灯膜,模拟出工厂研发实验室的空间形态。
-
The lower floor's sunken space is arranged in a progressive layout through functional zoning: the entrance transition area is paved with white floor tiles to form a visual buffer zone,
while the inward-extending DIY area is equipped with industrial laboratory tables and combined with large-scale square light films to simulate the space form of a factory research and development laboratory.








金属节点与型材在视觉上突出了结构的精密理性,
木质海洋板则为冷硬的材质注入温度与自然感,共同打造出一个理性、秩序轻盈并存的空间。
-
Metal nodes and profiles visually highlight the precision and rationality of the structure, while wooden marine boards inject warmth and a sense of nature into the cold and hard materials, jointly creating a space where rationality,order and lightness coexist.


Contact
Add
C Area,321Cultural & Creative Park,
NO.666,Donghong Road,Chengdu City.
taobao